Verkocht onder voorbehoud:Veldzichtweg 2, 4456 RN Lewedorp - Foto
Verkocht onder voorbehoud
+66

Veldzichtweg 2 4456 RN Lewedorp € 598.000,- k.k.

  • Woonhuis
  • 4 kamers
  • 3 slaapkamers
  • 1 badkamer
  • Bouwjaar 1954
  • 1.005 m² perceeloppervlakte
  • 146 m² gebruiksoppervlakte
  • C Energielabel C

Beschrijving

In het buitengebied van Lewedorp biedt R+ Makelaardij deze goed onderhouden vrijstaande woning met grote garage/schuur te koop aan. Het geheel is gelegen op een ruim perceel van 1.005 m2 eigen grond.

De woning is heerlijk vrij gelegen, aan alle zijden. Toch liggen de voorzieningen van het dorpscentrum op korte afstand. Heinkenszand ligt op enkele kilometers. Goes, Vlissingen en Middelburg bereikt u binnen 15 minuten.

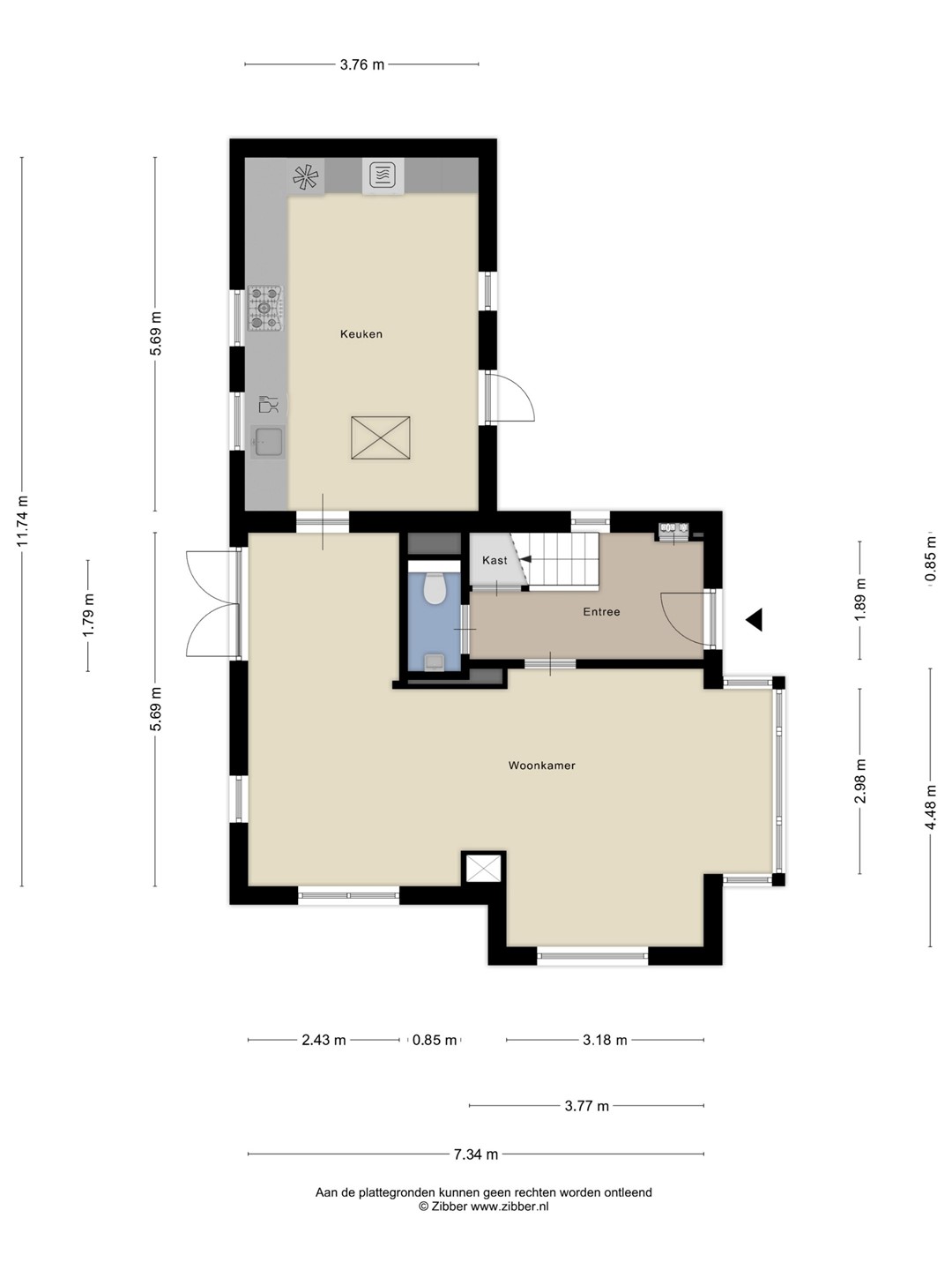
Indeling

U komt binnen aan de zijkant van de woning, in de hal met toilet, meterkast en trapopgang. Deze ingang wordt zelden gebruikt, in het buitengebied is eigenlijk de achterdeur altijd de hoofdingang.

De woonkamer is over de volle breedte aan de voorzijde gelegen. Een erker zorgt voor veel extra licht en een speels element.

Aan de andere zijde van de woonkamer zorgen openslaande tuindeuren voor directe toegang tot de tuin.

De woning beschikt over een ruime aanbouw waar de heerlijke woonkeuken is gerealiseerd. De keuken is in L-vorm opgesteld en voorzien van diverse apparatuur.

Eerste verdieping

Op de eerste verdieping zijn 3 slaapkamers gelegen. De ouderslaapkamer is ruim van afmetingen -met vaste kastenwand- en beschikt over een balkon. De badkamer is compleet uitgevoerd met een ligbad, inloopdouche, dubbele wastafel en toilet.

Tweede verdieping

De tweede verdieping bestaat uit een praktische bergzolder.

Tuin

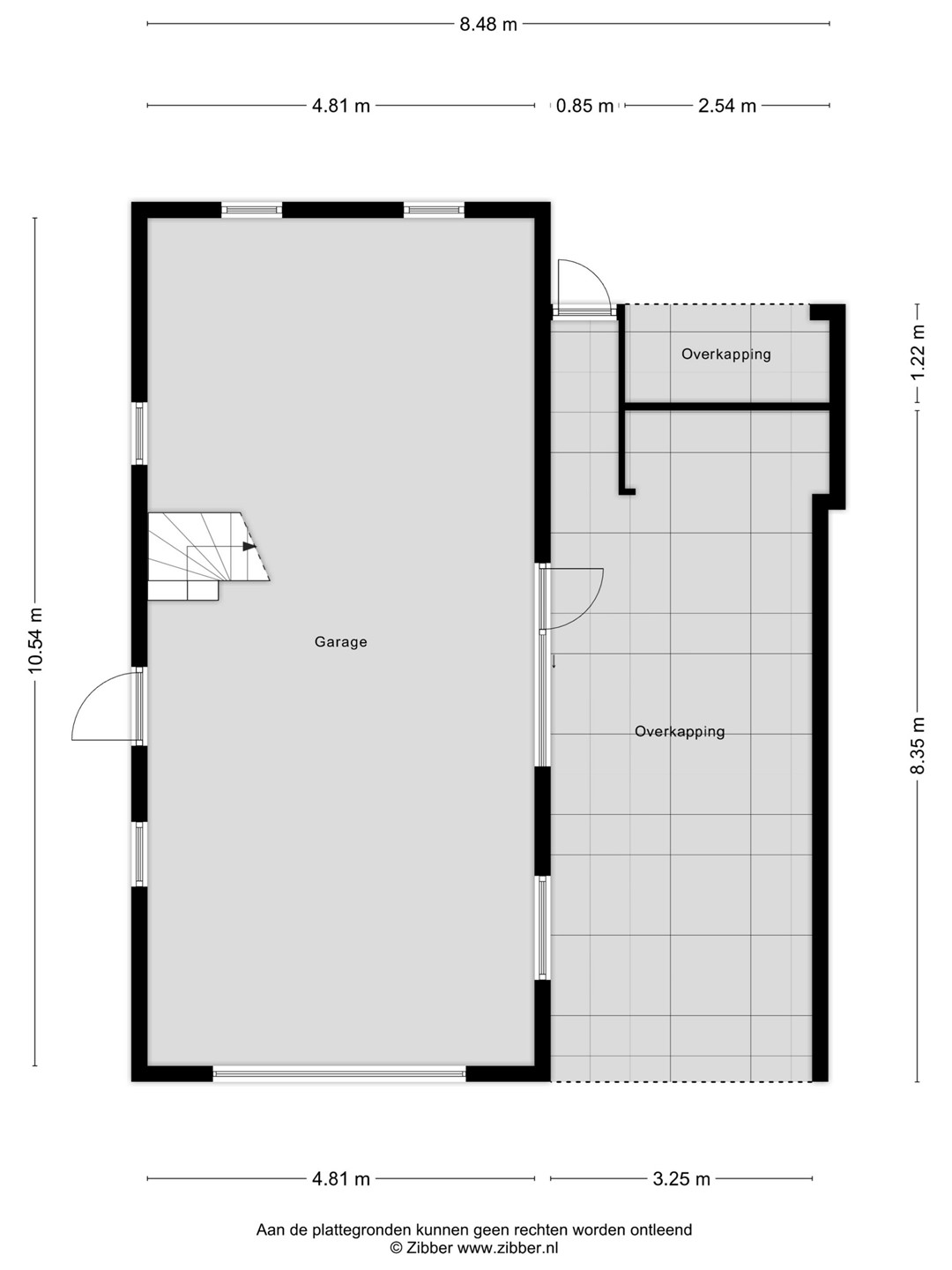
Naast de woning staat een grote garage/schuur (50 m2) met een (zolder)verdieping. Deze verdieping is ingericht als studio/appartement met een (slaap)kamer, een overloop met keukenblok en een badkamer met douche, wastafel en toilet. Een ruimte met vele mogelijkheden: tienerkamer, kantoor/praktijk aan huis, etc. Deze ruimte is prima te gebruiken als B&B.

De tuin rondom de woning is ruim opgezet, overal ervaart u vrijheid en weidsheid.

Bijzonderheden

Een deel van de begane grond is uitgerust met vloerverwarming; er zijn 14 zonnepanelen voorzien.

Kortom, een ideale mogelijkheid voor ‘buiten wonen’.

Aanvaarding in overleg.

Kaart

Kenmerken

Overdracht

Referentienummer
00446
Vraagprijs
€ 598.000,- k.k.
Status
Verkocht onder voorbehoud
Aanvaarding
In overleg
Aangeboden sinds
Vrijdag 27 februari 2026
Laatste wijziging
Donderdag 2 april 2026

Bouw

Type object
Woonhuis, eengezinswoning, vrijstaande woning
Soort bouw
Bestaande bouw
Bouwperiode
1954
Dakbedekking
Dakpannen
Type dak
Zadeldak
Isolatievormen
Dakisolatie
Dubbel glas
Spouwmuren

Oppervlaktes en inhoud

Perceeloppervlakte
1.005 m²
Woonoppervlakte
146 m²
Woonkameroppervlakte
21,87 m²
Keukenoppervlakte
21,39 m²
Inhoud
582 m³
Oppervlakte overige inpandige ruimten
11 m²
Oppervlakte externe bergruimte
51 m²
Oppervlakte gebouwgebonden buitenruimte
4 m²
Balkonoppervlakte
4,08 m²

Indeling

Aantal bouwlagen
3
Aantal kamers
4 (waarvan 3 slaapkamers)
Aantal badkamers
1 (en 1 apart toilet)

Tuin

Type
Achtertuin

Energieverbruik

Energielabel
C

CV ketel

CV ketel
Nefit
Warmtebron
Gas
Bouwjaar
2005
Combiketel
Ja
Eigendom
Eigendom

Uitrusting

Warm water
CV-ketel
Verwarmingssysteem
Centrale verwarming
Vloerverwarming (gedeeltelijk)
Badkamervoorzieningen
Dubbele wastafel
Inloopdouche
Ligbad
Toilet
Parkeergelegenheid
Vrijstaande stenen garage
Heeft een balkon
Ja
Tuin aanwezig
Ja
Heeft een garage
Ja
Heeft zonnepanelen
Ja

Kadastrale gegevens

Kadastrale aanduiding
Borsele K 45
Perceeloppervlakte
1.005 m²
Omvang
Geheel perceel
Eigendomsituatie
Eigen grond