Verkocht onder voorbehoud:Hoefbladstraat 34, 4451 TL Heinkenszand - Foto
Verkocht onder voorbehoud
+57

Hoefbladstraat 34 4451 TL Heinkenszand € 875.000,- k.k.

  • Woonhuis
  • 6 kamers
  • 5 slaapkamers
  • 1 badkamers
  • Bouwjaar 2008
  • 807 m² perceeloppervlakte
  • 234 m² gebruiksoppervlakte
  • A Energielabel A

Beschrijving

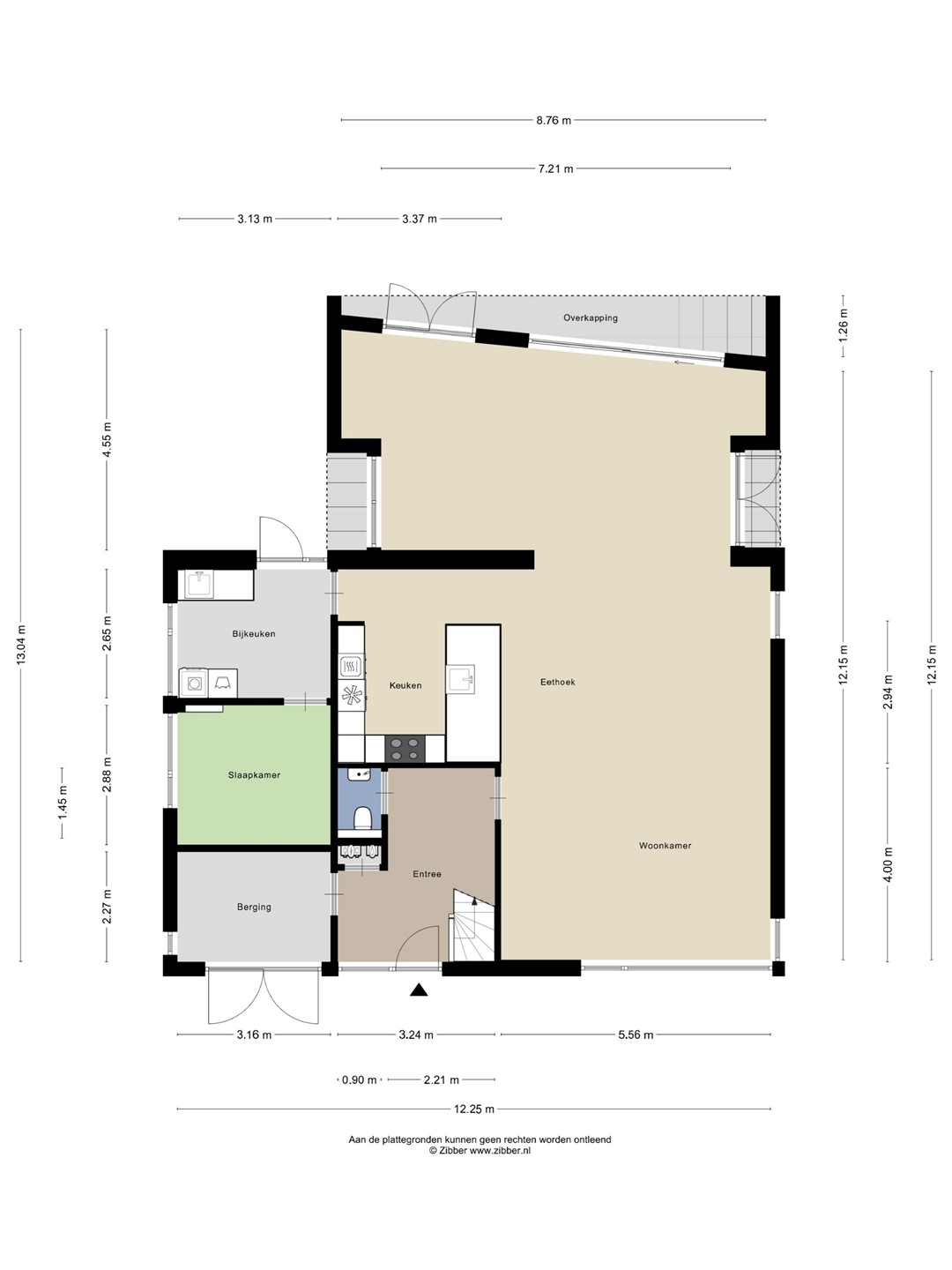
In de populaire wijk “Over de Dijk” biedt R+ Makelaardij deze zeer riante moderne vrijstaande villa te koop aan. Met een woonoppervlakte van maar liefst 234 m2 en een royale uitbouw aan de achterzijde biedt dit unieke object een zee aan ruimte. Het geheel staat op een kavel van 807 m2 grond.

Indeling

U komt binnen in de lichte en imposante hal, hier vindt u tevens het toilet, de meterkast, de trapopgang en aan de linkerzijde de toegang tot de berging.

Rechts komt u in de woonkamer, een erg lichte en royale ruimte. Door de uitbouw aan de achterzijde, over nagenoeg de volle breedte van de woning, is er een heerlijke extra ‘hoek’ ontstaan. Een speelruimte voor jonge kinderen, een thuisbioscoop, kantoor: zomaar enkele invullingen die prima te realiseren zijn.

De luxe open keuken is in baropstelling uitgevoerd en voorzien van diverse inbouwapparatuur. De keuken wordt gekenmerkt door de vele kastruimte en kent een mooie verbinding met de woonkamer.

Aansluitend aan de keuken komt u in de bijkeuken met de witgoedaansluitingen.

Door de huidige eigenaar is de oorspronkelijke garage gesplitst in een berging en een gym/sportruimte.

Eerste verdieping

Op de eerste verdieping zijn maar liefst 4 slaapkamers gelegen, allen met royale afmetingen. De grootste slaapkamer is voorzien van een walk-in closet.

De badkamer is luxe uitgevoerd met (dubbele) inloopdouche, ligbad en dubbele wastafelmeubel. Een apart toilet maakt de eerste verdieping compleet.

Tuin

De tuin rondom de woning is ruim opgezet met een groot gazon en terras. Aan alle zijden zit u heerlijk vrij, zodat u de gehele dag verzekerd bent van een plekje in de zon.

Bijzonderheden

Heinkenszand biedt alle voorzieningen die u nodig heeft, op fiets- en/of wandelafstand. Binnen enkele minuten bereikt u snelweg A58.

Kortom, een unieke mogelijkheid voor iemand die ruimte, comfort en luxe zoekt.

Aanvaarding in overleg.

Kaart

Kenmerken

Overdracht

Referentienummer
00420
Vraagprijs
€ 875.000,- k.k.
Status
Verkocht onder voorbehoud
Aanvaarding
In overleg
Aangeboden sinds
Vrijdag 24 oktober 2025
Laatste wijziging
Woensdag 12 november 2025

Bouw

Type object
Woonhuis, eengezinswoning, vrijstaande woning
Soort bouw
Bestaande bouw
Bouwperiode
2008
Dakbedekking
Bitumen
Type dak
Platdak
Isolatievormen
Dakisolatie
Dubbel glas
HR-glas
Muurisolatie
Spouwmuren
Vloerisolatie
Volledig geïsoleerd

Oppervlaktes en inhoud

Perceeloppervlakte
807 m²
Woonoppervlakte
234 m²
Keukenoppervlakte
9,91 m²
Inhoud
868 m³
Oppervlakte externe bergruimte
24 m²
Oppervlakte gebouwgebonden buitenruimte
10 m²

Indeling

Aantal bouwlagen
2
Aantal kamers
6 (waarvan 5 slaapkamers)
Aantal badkamers
1 (en 2 aparte toiletten)

Tuin

Type
Achtertuin

Energieverbruik

Energielabel
A

CV ketel

CV ketel
Nefit Topline
Warmtebron
Gas
Bouwjaar
2008
Combiketel
Ja
Eigendom
Eigendom

Uitrusting

Aantal parkeerplaatsen
2
Warm water
CV-ketel
Verwarmingssysteem
Centrale verwarming
Ventilatie methode
Mechanische ventilatie
Keukenvoorzieningen
Inbouwapparatuur
Badkamervoorzieningen
Dubbele wastafel
Inloopdouche
Ligbad
Wastafelmeubel
Heeft kabel-tv
Ja
Glasvezelaansluiting aanwezig
Ja
Tuin aanwezig
Ja
Heeft schuur/berging
Ja
Heeft een schuifpui
Ja
Heeft ventilatie
Ja

Kadastrale gegevens

Kadastrale aanduiding
Borsele AH 5054
Perceeloppervlakte
807 m²
Omvang
Geheel perceel
Eigendomsituatie
Eigen grond