Verkocht:Mauritsstraat 40, 4441 BA Ovezande - Foto
Verkocht
+43

Mauritsstraat 40 4441 BA Ovezande

  • Woonhuis
  • 5 kamers
  • 4 slaapkamers
  • 1 badkamers
  • Bouwjaar 1981
  • 167 m² perceeloppervlakte
  • 113 m² gebruiksoppervlakte
  • C Energielabel C

Beschrijving

Aan een verkeersluw woonhofje biedt R+ Makelaardij deze ruime hoekwoning te koop aan. De woning is goed onderhouden en beschikt over 4 slaapkamers.

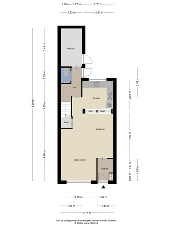
Indeling

U komt binnen in de hal met meterkast, waarna u de ruime woonkamer betreedt. Het zitgedeelte is aan de voorzijde gelegen. De open keuken is uitgevoerd in u-opstelling met bargedeelte. De keuken is eenvoudig van uitvoering.

Vanuit de keuken komt u in een hal/portaal met toilet, trapopgang en toegang tot de praktische bijkeuken/berging.

Eerste verdieping

Op de eerste verdieping vindt u 3 ruime slaapkamers en de badkamer. De badkamer is uitgevoerd met een douche, wastafel en toilet.

Tweede verdieping

De tweede verdieping is met een vaste trapopgang toegankelijk en is ingedeeld met een overloop en ruime 4e slaapkamer.

Tuin

De achtertuin is netjes en onderhoudsvriendelijk uitgevoerd, en is zowel via binnen (berging en hal) als buitenom te bereiken.

Bijzonderheden

Ovezande is een klein, gemoedelijk dorp, centraal gelegen in de fraaie “Zak” van Zuid-Beveland. Het kent een goed primair voorzieningenniveau met een buurtsuper, bakker, basisschool en sportverenigingen.

Middelburg, Vlissingen en Goes bereikt u binnen 15 minuten.

Een prima ruime eengezinswoning, ideaal gelegen en zonder veel werkzaamheden te betrekken.

Aanvaarding in overleg.

Kaart

Kenmerken

Overdracht

Referentienummer
00407
Vraagprijs
€ 274.000,- k.k.
Status
Verkocht
Aanvaarding
In overleg
Aangeboden sinds
Maandag 18 augustus 2025
Laatste wijziging
Donderdag 11 september 2025

Bouw

Type object
Woonhuis, eengezinswoning, eind woning
Soort bouw
Bestaande bouw
Bouwperiode
1981
Isolatievormen
Dakisolatie
Grotendeels dubbel glas
Spouwmuren

Oppervlaktes en inhoud

Perceeloppervlakte
167 m²
Woonoppervlakte
113 m²
Inhoud
402 m³

Indeling

Aantal bouwlagen
3
Aantal kamers
5 (waarvan 4 slaapkamers)
Aantal badkamers
1 (en 1 apart toilet)

Tuin

Type
Achtertuin

Energieverbruik

Energielabel
C

CV ketel

CV ketel
Remeha HR Combi
Warmtebron
Gas
Bouwjaar
2005
Combiketel
Ja
Eigendom
Eigendom

Uitrusting

Warm water
CV-ketel
Verwarmingssysteem
Centrale verwarming
Keukenvoorzieningen
Inbouwapparatuur
Badkamervoorzieningen
Douche
Toilet
Wastafel
Heeft kabel-tv
Ja
Tuin aanwezig
Ja
Beschikt over een internetverbinding
Ja
Heeft schuur/berging
Ja

Kadastrale gegevens

Kadastrale aanduiding
Borsele AF 1954
Perceeloppervlakte
167 m²
Omvang
Geheel perceel
Eigendomsituatie
Eigen grond