Onder bod:Wilhelminastraat 6, 4436 AG Oudelande - Foto
Onder bod
+75

Wilhelminastraat 6 4436 AG Oudelande € 578.000,- k.k.

  • Woonhuis
  • 5 kamers
  • 4 slaapkamers
  • 2 badkamers
  • Bouwjaar 1880
  • 612 m² perceeloppervlakte
  • 188 m² gebruiksoppervlakte
  • C Energielabel C

Beschrijving

In de kern van Oudelande biedt R+ Makelaardij deze unieke vrijstaande woning te koop aan. Door de huidige eigenaren is de woning volledig gerenoveerd en uitgebreid, waarbij de karakteristieke “woonboerderij”-stijl is behouden.

De woning is voorzien van een royale slaapkamer en badkamer en-suite op de begane grond.

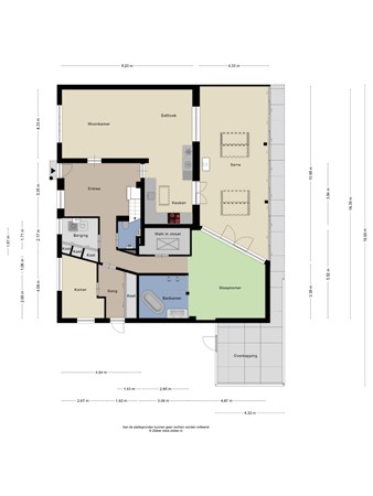
Indeling

U komt binnen in de ruime hal, met toegang tot alle vertrekken. Aan de linkerzijde komt u in de ruime L-vormige woonkamer, met daarna de open keuken in hoekopstelling. De keuken is voorzien van diverse apparatuur en is uitgerust met openslaande deuren naar de prachtige tuinkamer.

De tuinkamer/veranda is een plaatje! Wat een ruimte -ruim 40 m2- en sfeer! Vele uren zullen de nieuwe eigenaren hier doorbrengen, net zoals de huidige bewoners doen.

Vanuit de hal bereikt u eveneens de riante slaapkamer, met luxe badkamer en-suite. De badkamer is ingedeeld met een inloopdouche, dubbele wastafelmeubel en een vrijstaand ligbad.

Tevens treft u op de begane grond een berging met de witgoedaansluitingen, een toilet, een werkkamer en walk-in closet. De woning onderscheidt zich door de vele kastruimte die door de gehele woning aangebracht is.

Eerste verdieping

De eerste verdieping bestaat uit een flinke overloop, 2 grote slaapkamers en een badkamer met ligbad, douche, wastafelmeubel en toilet.

Tuin

De achtertuin heeft een royale oppervlakte (totale perceel 612 m2) en is uniek voor een dergelijke woning middenin een dorp. De tuin bestaat uit een groot gazon en een prachtig aangelegde vijver.

Naast de woning ligt een brede oprit met voldoende plaats voor 2 a 3 auto's.

Bijzonderheden

Kortom, een perfecte woning voor iemand die ruimte, sfeer en comfort zoekt. Voor de jonge senior past de woning met de slaapkamer en badkamer op de begane grond uitstekend.

Aanvaarding in overleg.

Kaart

Kenmerken

Overdracht

Referentienummer
00417
Vraagprijs
€ 578.000,- k.k.
Status
Onder bod
Aanvaarding
In overleg
Aangeboden sinds
Donderdag 2 oktober 2025
Laatste wijziging
Maandag 20 oktober 2025

Bouw

Type object
Woonhuis, eengezinswoning, vrijstaande woning
Soort bouw
Bestaande bouw
Bouwperiode
1880
Dakbedekking
Dakpannen
Type dak
Zadeldak
Isolatievormen
Dakisolatie
Dubbel glas
Muurisolatie
Vloerisolatie

Oppervlaktes en inhoud

Perceeloppervlakte
612 m²
Woonoppervlakte
188 m²
Woonkameroppervlakte
35,51 m²
Keukenoppervlakte
10,37 m²
Inhoud
697 m³
Oppervlakte gebouwgebonden buitenruimte
74 m²

Indeling

Aantal bouwlagen
2
Aantal kamers
5 (waarvan 4 slaapkamers)
Aantal badkamers
2

Tuin

Type
Achtertuin

Energieverbruik

Energielabel
C

CV ketel

CV ketel
Daikin Warmtepomp
Bouwjaar
2022
Eigendom
Huur

Uitrusting

Aantal parkeerplaatsen
3
Warm water
CV-ketel
Verwarmingssysteem
Centrale verwarming
Vloerverwarming (gedeeltelijk)
Warmtepomp
Ventilatie methode
Mechanische ventilatie
Badkamervoorzieningen Badkamer 1
Dubbele wastafel
Inloopdouche
Ligbad
Badkamervoorzieningen Badkamer 2
Douche
Ligbad
Toilet
Wastafelmeubel
Heeft kabel-tv
Ja
Tuin aanwezig
Ja
Beschikt over een internetverbinding
Ja
Heeft zonnepanelen
Ja
Heeft ventilatie
Ja

Kadastrale gegevens

Kadastrale aanduiding
Borsele AO 551
Perceeloppervlakte
612 m²
Omvang
Geheel perceel
Eigendomsituatie
Eigen grond