Nieuw in verkoop:Westdijk 7, 4451 RD Heinkenszand - Foto
Nieuw in verkoop
+35

Westdijk 7 4451 RD Heinkenszand € 592.000,- k.k.

  • Woonhuis
  • 5 kamers
  • 4 slaapkamers
  • 2 badkamers
  • Bouwjaar 1962
  • 1.029 m² perceeloppervlakte
  • 131 m² gebruiksoppervlakte
  • C Energielabel C

Beschrijving

Aan de rand van het buitengebied van Heinkenszand, bij de ingang van het dorp, biedt R+ Makelaardij deze vrijstaande woning met garage te koop aan. Het geheel is gelegen op een royaal kavel van 1.029 m2 en beschikt over een slaapkamer en badkamer op de begane grond.

Indeling

Zoals het hoort ‘buitenaf’ komt eigenlijk iedereen via de achterdeur naar binnen, in de ruime bijkeuken met de witgoedaansluitingen. Hier vindt u ook het toilet.

Vervolgens bereikt u de dichte keuken. Die is keurig netjes uitgevoerd en voorzien van diverse inbouwapparatuur.

De ruime doorzonwoonkamer is heerlijk licht, voorzien van houten parketvloer en houtkachel. Enkele jaren geleden is de woning levensloopbestendig gemaakt door de aanbouw met royale slaapkamer (5,50 x 3,15 meter) en een complete badkamer met dubbele wastafelmeubel, inloopdouche en toilet.

Aan de voorzijde van de woning is de hoofdentree, met trapopgang en meterkast.

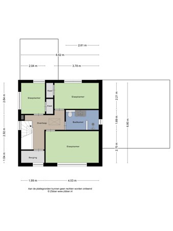
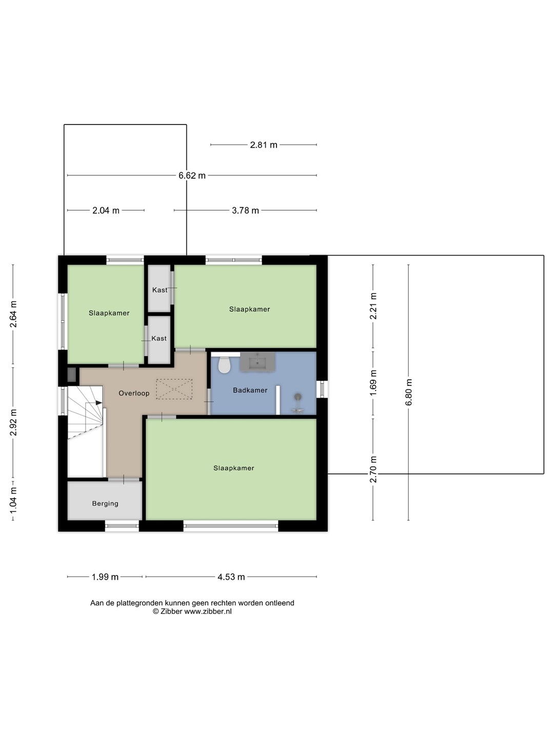
Eerste verdieping

Op de eerste verdieping zijn 3 prima slaapkamers gelegen, waarvan 2 met een vaste kast. Hier vindt u ook de tweede badkamer met inloopdouche, wastafelmeubel en toilet.

Tweede verdieping

Een berging en de bergzolder op de tweede verdieping zorgen voor veel praktische ruimte.

Tuin

De garage -met zolder- naast het huis is ideaal voor de klusser, of voor het parkeren van een auto.

De tuin rondom de woning is heerlijk ruim opgezet met voldoende plek voor het houden van kleinvee.

Rondom de woning bent u verzekerd van uw privacy, met nauwelijks omliggende bebouwing.

Bijzonderheden

Heinkenszand is de grootste kern van de Gemeente Borsele, met een uitstekend voorzieningenniveau. De woning is door de indeling voor een brede doelgroep geschikt, maar iedereen zal aangetrokken zijn door de perfecte locatie van het geheel.

Aanvaarding in overleg.

Kaart

Kenmerken

Overdracht

Referentienummer
00435
Vraagprijs
€ 592.000,- k.k.
Status
Nieuw in verkoop
Aanvaarding
In overleg
Aangeboden sinds
Woensdag 17 december 2025

Bouw

Type object
Woonhuis, eengezinswoning, vrijstaande woning
Soort bouw
Bestaande bouw
Toegankelijkheid
Mindervaliden
Senioren
Bouwperiode
1962
Dakbedekking
Dakpannen
Type dak
Zadeldak
Isolatievormen
Dakisolatie
Dubbel glas
Muurisolatie
Spouwmuren

Oppervlaktes en inhoud

Perceeloppervlakte
1.029 m²
Woonoppervlakte
131 m²
Woonkameroppervlakte
29,21 m²
Keukenoppervlakte
6,54 m²
Inhoud
489 m³
Oppervlakte overige inpandige ruimten
1 m²
Oppervlakte externe bergruimte
24 m²
Oppervlakte gebouwgebonden buitenruimte
13 m²

Indeling

Aantal bouwlagen
3
Aantal kamers
5 (waarvan 4 slaapkamers)
Aantal badkamers
2 (en 1 apart toilet)

Tuin

Type
Achtertuin

Energieverbruik

Energielabel
C

CV ketel

CV ketel
Nefit
Warmtebron
Gas
Bouwjaar
2000
Combiketel
Ja
Eigendom
Eigendom

Uitrusting

Aantal parkeerplaatsen
4
Aantal overdekte parkeerplaatsen
3
Warm water
CV-ketel
Verwarmingssysteem
Centrale verwarming
Houtkachel
Vloerverwarming (gedeeltelijk)
Badkamervoorzieningen Badkamer 1
Dubbele wastafel
Inloopdouche
Toilet
Wastafelmeubel
Badkamervoorzieningen Badkamer 2
Inloopdouche
Toilet
Wastafelmeubel
Parkeergelegenheid
Vrijstaande stenen garage
Tuin aanwezig
Ja
Heeft een garage
Ja
Heeft zonnepanelen
Ja

Kadastrale gegevens

Kadastrale aanduiding
Borsele AH 3273
Perceeloppervlakte
630 m²
Omvang
Geheel perceel
Eigendomsituatie
Eigen grond
Kadastrale aanduiding
Borsele AH 3915
Perceeloppervlakte
399 m²
Omvang
Geheel perceel
Eigendomsituatie
Eigen grond