Verkocht onder voorbehoud:Nazareth 19, 4431 AR 's-Gravenpolder - Foto
Verkocht onder voorbehoud
+25

Nazareth 19 4431 AR 's-Gravenpolder € 269.000,- k.k.

  • Woonhuis
  • 4 kamers
  • 3 slaapkamers
  • 1 badkamers
  • Bouwjaar 1910
  • 257 m² perceeloppervlakte
  • 86 m² gebruiksoppervlakte

Beschrijving

In het centrum van ’s-Gravenpolder biedt R+ Makelaardij deze leuke en verrassend ruim twee-onder-een-kapwoning te koop aan. De woning beschikt over onder meer 3 slaapkamers en een diepe achtertuin. Door de prijsstelling is deze woning erg aantrekkelijk voor starters.

Indeling

U komt binnen aan de zijkant van de woning, in de hal met meterkast en toilet. Vervolgens komt u in de ruime doorzonwoonkamer, met het zitgedeelte aan de voor-/straatzijde en het eetgedeelte aan de achter-/tuinzijde.

De open keuken is netjes uitgevoerd en voorzien van diverse apparatuur. Aansluitend aan de keuken is de bijkeuken, met o.a. de cv-opstelling.

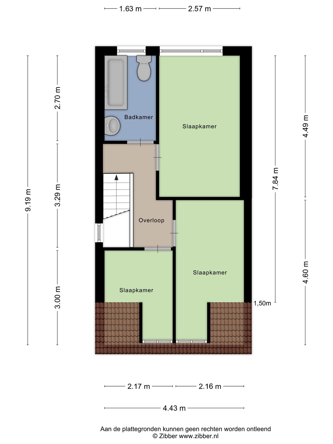
Eerste verdieping

Op de eerste verdieping treft u de 3 slaapkamers. De dakkapellen zorgen voor veel extra ruimte en licht. De badkamer is keurig en compleet uitgevoerd met een douche/ligbad, wastafel en toilet.

Tweede verdieping

De tweede verdieping bestaat uit een bergzolder.

Tuin

De diepe achtertuin is ideaal voor een jong gezin en op vele manieren in te delen.

Bijzonderheden

Op het dorp zijn vele voorzieningen aanwezig. Scholen, kerken en een supermarkt zijn op wandelafstand. Daarnaast ligt Goes op 10 autominuten, evenals snelweg A58.

Kortom, een van de weinige ‘starterskansen’ op ’s-Gravenpolder.

Aanvaarding in overleg.

Kaart

Kenmerken

Overdracht

Referentienummer
00425
Vraagprijs
€ 269.000,- k.k.
Status
Verkocht onder voorbehoud
Aanvaarding
In overleg
Aangeboden sinds
Maandag 20 oktober 2025
Laatste wijziging
Woensdag 3 december 2025

Bouw

Type object
Woonhuis, eengezinswoning, twee onder een kap woning
Soort bouw
Bestaande bouw
Bouwperiode
1910
Dakbedekking
Dakpannen
Type dak
Zadeldak
Isolatievormen
Dakisolatie
Dubbel glas

Oppervlaktes en inhoud

Perceeloppervlakte
257 m²
Woonoppervlakte
86 m²
Inhoud
304 m³
Oppervlakte externe bergruimte
14 m²

Indeling

Aantal bouwlagen
2
Aantal kamers
4 (waarvan 3 slaapkamers)
Aantal badkamers
1 (en 1 apart toilet)

Tuin

Type
Achtertuin

CV ketel

CV ketel
Intergas HR Combi
Warmtebron
Gas
Bouwjaar
2012
Combiketel
Ja
Eigendom
Eigendom

Uitrusting

Warm water
Centrale voorziening
CV-ketel
Verwarmingssysteem
Centrale verwarming
Badkamervoorzieningen
Douche
Ligbad
Toilet
Wastafel
Tuin aanwezig
Ja
Heeft schuur/berging
Ja

Kadastrale gegevens

Kadastrale aanduiding
Borsele AG 1518
Perceeloppervlakte
257 m²
Omvang
Geheel perceel
Eigendomsituatie
Eigen grond